



Maison SR
La maison existante située à Lormont est des années 1970, elle s’inspire des villas arcachonnaises avec des avancées de toitures et des décors en façades, cependant celle-ci étant d’une surface très réduite de 65 m² habitable, les propriétaires souhaitent le réaménagement de l’espace intérieur ainsi que la création d’une extension pour accueillir l’ensemble de la famille.
L’extension, mitoyenne avec la maison existante, permet d’offrir une véritable entrée qui s’ouvre sur un ensemble cuisine/séjour/salle à manger de 55 m², ouvert sur le jardin à l’ouest. Un escalier dans le prolongement de la circulation vers l’espace nuit (chambres) dessert un étage composé d’un coin bureau de 8m², d’une salle d’eau avec wc, de deux chambres de 17m² avec un balcon couvert.
Vu de l’extérieur, cette extension de 100 m² vient en rupture avec la maison existante. Ce choix permet à chaque entité d’être unique. Un choix des propriétaires qui voulaient conserver l’aspect traditionnel de la maison d’origine en ayant une extension moderne.
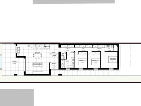
Dans la partie existante est implanté l’ensemble de l’espace nuit de la famille. Le mur porteur est conservé et l’ensemble des cloisons secondaires sont démolis. Le couloir devient un espace à double fonction en distribuant le wc individuel, la salle de bain et buanderie, les deux chambres de 11 m², ainsi que la chambre parentale avec salle d’eau de 14 m², et en offrant un large espace de rangement sur 7 mètres de long en plus d’un dressing sur 3 mètres de long.
Un agencement optimisé qui permet de changer l’usage des pièces sans avoir à modifier l’aspect extérieur de la maison existante.
Dans le prolongement de l’extension, une terrasse de 30 m² avec une partie couverte de 10 m² donne sur une piscine de 24m².
Cette double maison à Lormont possède un charme unique de l’ancien et du contemporain en extérieur. Elle offre une fluidité des espaces pour ravir l’ensemble de ces occupants en intérieur.
Pour agrandir et rénover votre villa, METROGRAM architecture vous apporte son expertise et sa créativité pour vous accompagner dans votre projet de la conception à la réalisation.
Nos prestations :
- Etude de faisabilité urbanistique, technique et financière
- Elaboration d'un projet sur mesure
- Illustrations et perspectives du projet
- L'estimation du coût des travaux
- Elaboration du dossier permis de construire
- Dossier technique et cahier des charges de la construction
- Appel d'offre de travaux
- La direction des travaux
Contactez-nous
Téléphone: +33 (0)5 47 74 31 80
E-mail: administration@metrogram-architecture.com
Adresse : 4 rue Emile Martin Dantatgnan, 33 240 Saint André de Cubzac












