



Maison BD
Un chai avec une base de plan carré de 11 mètres de côté est à réhabiliter. Une des façades est évidée sur la moitié et a été comblée par des parpaings sur l'autre moitié pour réaliser une pièce de stockage en rez-de-chaussée. L'ensemble des murs extérieurs du chai sont en moellons.
La partie de la façade évidée donne sur la piscine. Il est donc décidé de démolir la partie en parpaings pour réaliser une grande baie sur l'ensemble de cette façade qui va orienter l'ensemble des décisions du projet. Le fait d'ouvrir le bâtiment sur ce côté va permettre de faire bénéficier d'une lumière naturelle l'ensemble des pièces.
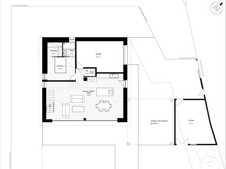
Au rez-de-chaussée sont disposé un garage ainsi qu'une suite parentale avec une salle de douche et un dressing sont également implantés pour un ensemble de 16 m². Viennent ensuite une entrée avec salle à manger, séjour et cuisine ouverte sur 51 m². Cet ensemble dispose d'une double hauteur sous plafond de 5 mètres au faîtage du bâtiment.
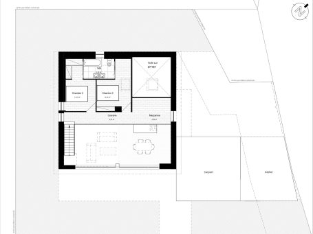
L'escalier est créé le long d'un des murs en moellons pour donner accès à l'étage qui surplombe la moitié du rez-de-chaussée. Une coursive ouverte permet de distribuer l'ensemble des pièces tout en permettant d'admirer la vue depuis la façade vitrée.
A l'étage deux chambres de 12 m² disposent d'une salle de bain commune. La coursive se termine sur une mezzanine.
Cet aménagement est totalement induit par la forme du bâtiment, ce qui permet d'en exploiter toutes les spécificités pour créer un habitat agréable et confortable pour ces occupants.
Pour transformer votre grange ou votre chai, METROGRAM architecture vous apporte son expertise et sa créativité pour vous accompagner dans votre projet de la conception à la réalisation.
Nos prestations :
- Etude de faisabilité urbanistique, technique et financière
- Elaboration d'un projet sur mesure
- Illustrations et perspectives du projet
- L'estimation du coût des travaux
- Elaboration du dossier permis de construire
- Dossier technique et cahier des charges de la construction
- Appel d'offre de travaux
- La direction des travaux
Contactez-nous
Téléphone: +33 (0)5 47 74 31 80
E-mail: administration@metrogram-architecture.com
Adresse : 4 rue Emile Martin Dantatgnan, 33 240 Saint André de Cubzac












