



Réaménagement et l'extension des locaux de la chambre des représentants du Maroc à Rabat
'agence METROGRAM Architecture est lauréate du concours pour le réaménagement et l'extension des locaux de la chambre des représentants du Maroc à Rabat organisé par le secrétariat général de cette institution.
L'AGENCE METROGRAM ARCHITECTURE CONÇOIT ET RÉALISE TOUT ETABLISSEMENT RECEVANT DU PUBLIC EN NEUF ou EN RÉHABILITATION.
LE PROJET :
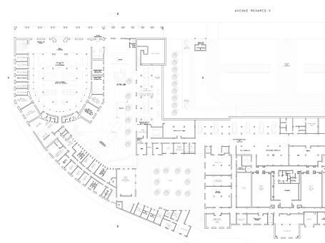
Ce concours est ouvert par la Chambre des Représentants, première chambre du Parlement du Maroc, à la fois pour la rénovation de son siège, dans le but d'étendre ses locaux, mais aussi afin d'ouvrir ces portes à un large public. Ces objectifs doivent être réalisés grâce à l'adjonction des anciens bureaux du Trésor Public aux locaux existants du Parlement. Ces attentes qui s'inscrivent dans le processus d'une démocratie en évolution perpétuelle se heurtent cependant aux exigences de fonctionnement intrinsèques à un Parlement notamment en ce qui concerne la sécurité et la sérénité du travail des parlementaires.
Le projet vise en premier lieu à résoudre cette équation. En effet, l'ensemble de la proposition architecturale consiste à articuler la chambre des représentants telle qu'elle existe aujourd'hui avec les nouveaux locaux à aménager. Pour cela, un espace central est conçu comme le cœur de la vie à venir du Parlement. Cet espace appelé « Atrium » est à la fois un lieu de rencontre, de circulation et de station situé à la jonction de l'ancien et du nouveau bâtiment.
Le second objectif du projet est de préserver au maximum l'intégrité des locaux que nous sommes appelés à aménager. En effet, le Parlement comme le Trésor Public sont des monuments historiques de la ville de Rabat. Leur murs sont chargés d'une histoire riche. On ne peut donc y intervenir que de manière très précautionneuse. Le parti pris est donc de ne faire des travaux sur aucune des façades extérieures du bâtiment y compris celles les plus récentes.
Seule la cour attenante aux deux bâtiments fera l'objet de modification mais uniquement sur des façades ne présentant aucun intérêt architectural.
Contactez-nous
Téléphone: +33 (0)5 47 74 31 80
E-mail: administration@metrogram-architecture.com
Adresse : 4 rue Emile Martin Dantatgnan, 33 240 Saint André de Cubzac