



Pôle de Santé à Hourtin
Le programme de ce projet consiste en la transformation et l'extension, d'un local commercial existant, en centre médical, et 3 logements T2.
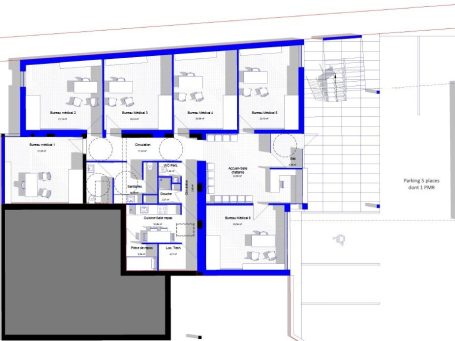
Le local existant d'une surface de 80 m² en rez-de-chaussée est entièrement repensé en lien avec une nouvelle extension de 115 m², pour former un centre médical. Ce centre se compose d'une salle d'attente, de 6 bureaux médicaux de 20 m² chacun, d'un bloc sanitaire. De plus des espaces pour le personnel sont prévus, dont une cuisine, un WC, une douche, une salle de réunion, et une salle de repos.
Le pôle santé est prévu pour accueillir différentes spécialités médicales, et paramédicales (généralistes, spécialistes, psychologues, infirmiers, etc..)
Attenant à cet ensemble, est construit un parking de 6 places dont une place PMR (Personne à mobilité réduite) en partie couvert.
Au-dessus du parking sont conçus 3 logements T2 dans un bâtiment sur pilotis, disposant d'un accès indépendant via un escalier extérieur et une coursive de distribution.
Ces logements de 48 m² chacun, possèdent tous une entrée avec placard, un WC séparé, une salle d'eau, une chambre, un séjour de 18 m² avec balcon de 5 m².
Les logements sont destinés aux médecins vacataires pour faciliter leur séjour dans le centre médical avec un logement confortable à proximité de leur lieu de travail.
Pour la construction de votre Pôle Santé, METROGRAM architecture vous apporte son expertise et sa créativité pour vous accompagner dans votre projet de la conception à la réalisation.
Nos prestations :
- Etude de faisabilité urbanistique, technique et financière
- Elaboration d'un projet sur mesure
- Illustrations et perspectives du projet
- L'estimation du coût des travaux
- Elaboration du dossier permis de construire
- Dossier technique et cahier des charges de la construction
- Appel d'offre de travaux
- La direction des travaux
Contactez-nous
Téléphone: +33 (0)5 47 74 31 80
E-mail: administration@metrogram-architecture.com
Adresse : 4 rue Emile Martin Dantatgnan, 33 240 Saint André de Cubzac